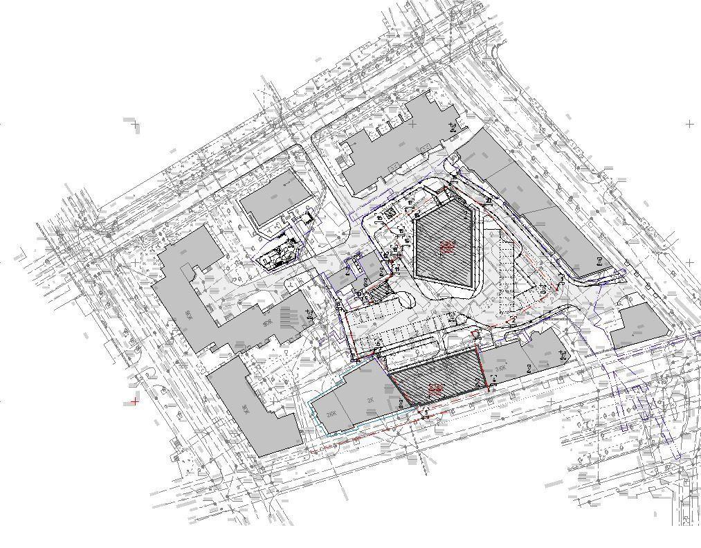
В Бресте на улице Гоголя собираются построить многоэтажки. Проект собираются реализовать в районе домов №№42,42/1, 44 и 46/1. Судя по плану, который выставил Брестский горисполком на своем официальном сайте, эти дома пойдут под снос.


К слову, речь идет о том самом дворе за Почетным консульством Франции в Бресте, где весной 2020 года появился стрит-арт, посвященный коронавирусу. Кстати, его до сих пор не убрали.



Читайте также: Фотофакт. В центре Бреста есть стрит-арт на тему коронавируса. И его пока что не убрали


Кроме этой «настенной живописи» во дворе есть немало чего интересного. Предназначенные под снос хоть и ветхие и запущенные, но яркие домики, а также двухэтажные кирпичные гаражи, которых в городе становится все меньше.



Согласно информации, размещенной горисполкомом, на их месте построят два многоквартирных жилых дома с объектами административно-офисного назначения, а также автомобильную парковку на 38 машиномест.





«Благоустройством предусмотрено устройство пешеходных дорожек, газонов, скамеек для отдыха в условной границе проектных работ», — сообщается на сайте городских властей.





Кроме того, проект предусматривает размещение на свободной от застройки территории детской площадки с качалками, горками, песочницами и спортивным комплексом.


Общественные обсуждения проекта пройдут с 6 февраля по 9 марта.
Фото:
Наш канал в Telegram. Присоединяйтесь!
Есть о чем рассказать? Пишите в наш Telegram-бот. Это анонимно и быстро


Сообщить об опечатке
Текст, который будет отправлен нашим редакторам: